Villa individuelle dans le quartier de Macampagne, Kinshasa
Année: 2024
Type: résidentiel
Statut: en cours
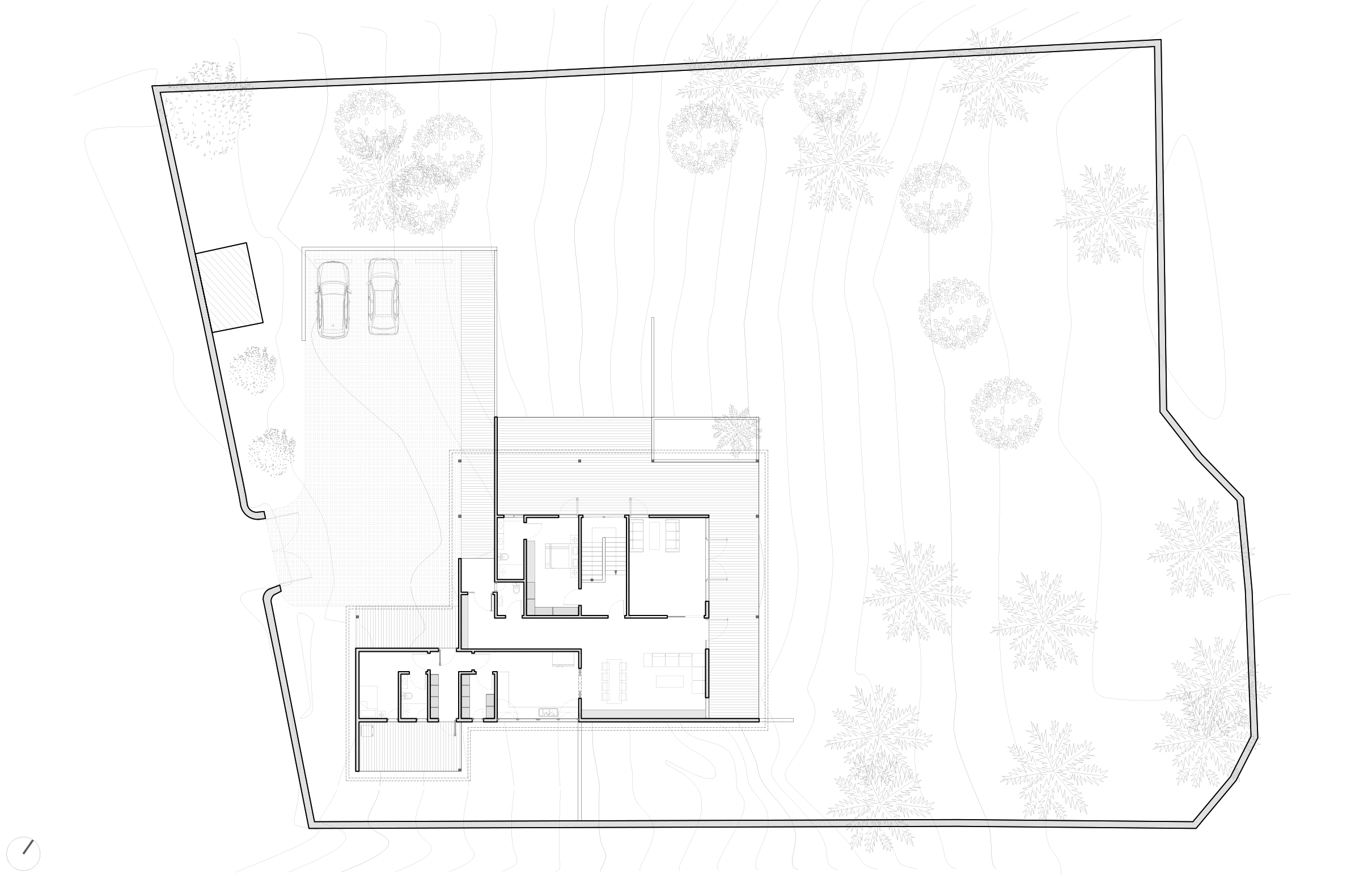
Située dans le quartier de Macampagne, à Kinshasa, sur un site exceptionnel de 2500m² qui lui est uniquement dédié, la Ribbon House est une villa de 4 chambres, un bureau et un salon de réception destinée à être la résidence privée pour un particulier.
Épousant la pente naturelle du terrain, elle s'y adapte et en tire tous les avantages. Les espaces de jour au niveau du rez-de-chaussée, accessibles depuis le parking et donnant sur de larges terrasses offrant vue sur le jardin, les espaces de nuit situés au rez-de-jardin, côtoyant directement la végétation et la tranquillité de ce dernier tout en profitant du vis-à-vis le plus réduit possible.
Le plan est tracé selon des axes principaux : le mur de soutènement du niveau inférieur, la façade sur le parking et son perron, ainsi que le mur parallèle à la limite parcellaire.
Dans sa volumétrie, la maison joue avec les horizontales et les verticales pour créer des chemins pour l’œil, invitant à promener le regard… ses facettes qui donnent à la lumière une dynamique particulière.


plan de masse

plan de niveau rez-de-chaussée

plan de niveaux rez-de-jardin

coupe longitudinale
plan de situation