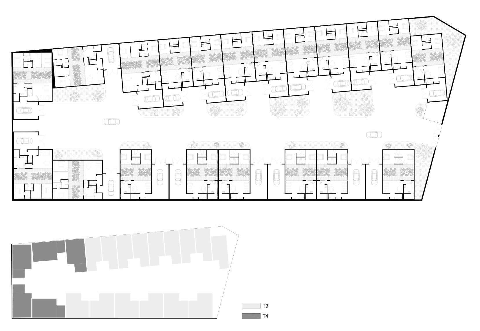
Concession immobilière de 20 maisons individuelles
Année: 2021
Type: résidentiel
Statut: étude
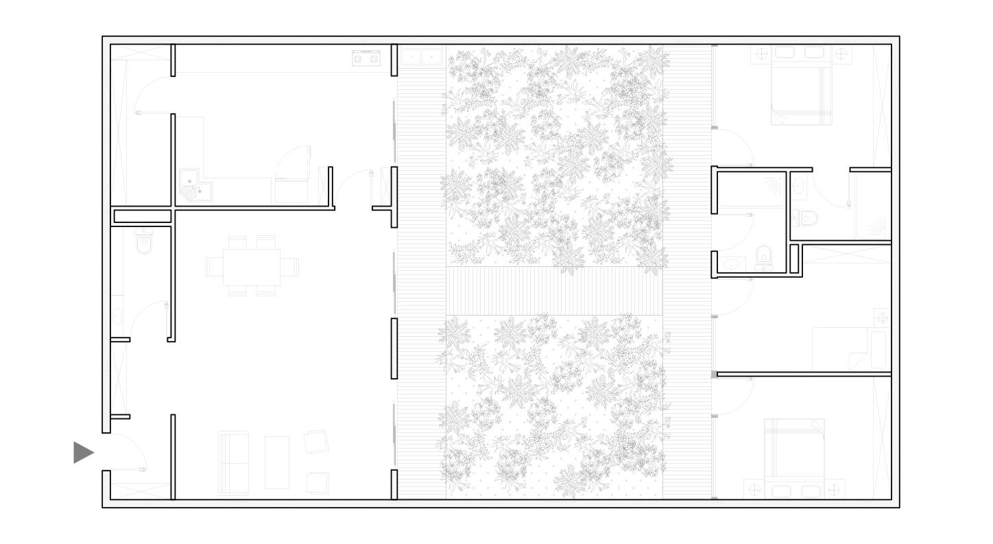
Le projet consiste en la création de 20 maisons de deux et trois chambres dans la commune de N’sele, à Kinshasa. La localisation du terrain et les contraintes foncières nécessitaient l’usage d’une typologie d’habitation centrée sur un jardin séparant la partie jour de la partie nuit.
Ce jardin-terrasse est probablement l’espace le plus important, car il répond à un mode de vie en extérieur très répandu. Il constitue l’espace social où l’on cuisine ensemble, où l’on parle, en profitant de la fraîcheur apportée par la végétation, qui limite le rayonnement solaire et favorise la ventilation naturelle.
