Création d'un espace d'activité pour l'UFE Kinshasa
Année: 2024
Type: culturel
Statut: en cours
L'association de l'Union des Français de l'Étranger de Kinshasa souhaite agrandir l'espace destiné à ses membres. Le projet consiste en l'extension de leur bâtiment existant, permettant la création d'une terrasse couverte qui accueillera les activités de l'association.
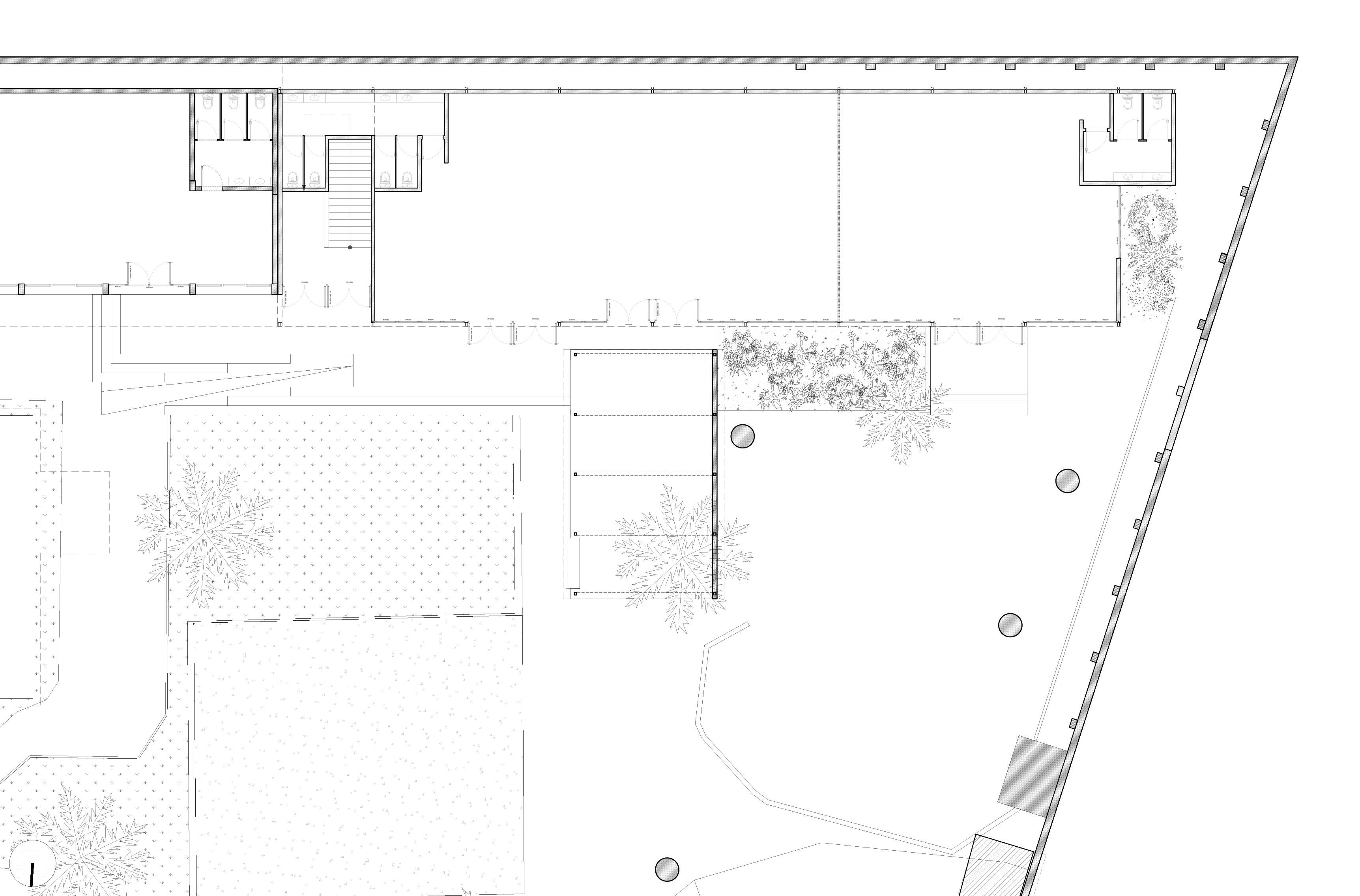
Il doit également comprendre la création d'une salle polyvalente au rez-de-chaussée, venant en remplacement de l'existante.
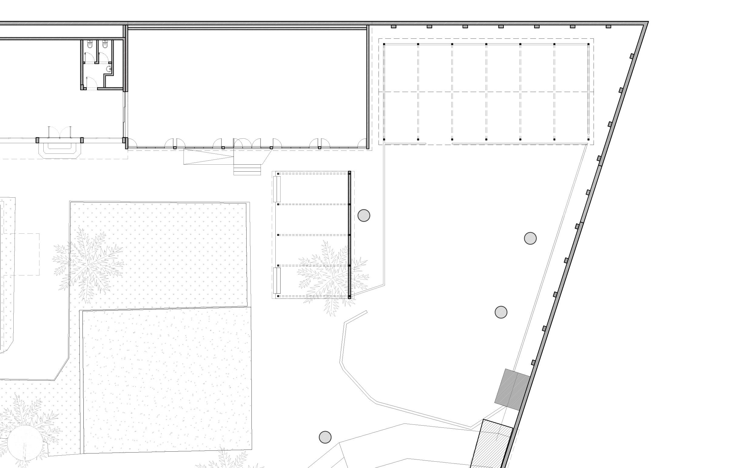
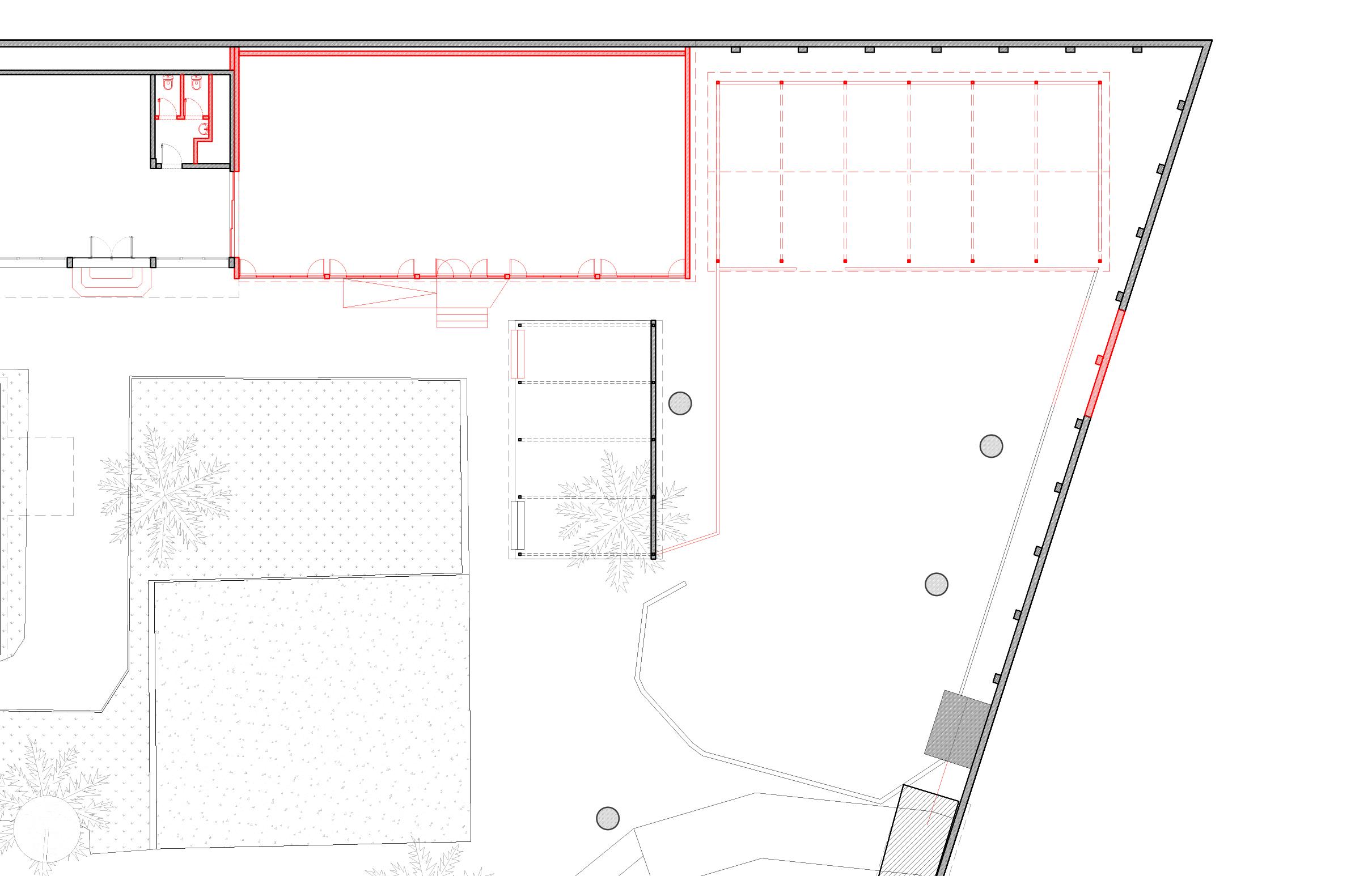
Le projet s'inscrit dans une parcelle complexe et multiprogrammatique, mais doit surtout s'y implanter avec le moins d'impact possible sur les nombreuses activités qui s'y déroulent.
L'architecture est ici la plus fonctionnelle et rationnelle possible : l'ossature en acier permet une installation rapide avec des engins légers pour la manutention ; le plancher en poutrelles métalliques offre à la nouvelle salle polyvalente un plafond technique et des possibilités de modulation infinies.


Plan des démolitions

Plan projet niveau rez-de-chaussée

Plan projet niveau R+1

Elévation - façade principale
Plan de l'existant